площадью 134,50 м2, по цене 4740000 по адресу Яровое - Б квартал,25

Цена 4 740 000 р.
Адрес Яровое, Б квартал,25
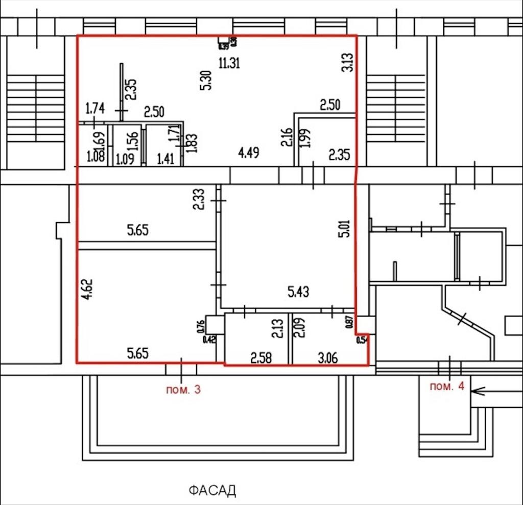
Площадь помещения 134,5 м2
Сбер А предлагает к реализации помещение площадью 134,5 кв. м., расположенного по адресу: Алтайский край, г. Яровое, кв-л Б, д.25, помещение 3 Продажа посредством проведения торгов на электронной площадке Сбербанк-АСТ. Номер процедуры: SBR065-2509250007 Ссылка на торги: https://utp.sberbank-ast.ru/Property/NBT/PurchaseV iew/43/0/0/3436086 Собственник: Сибирский банк ПАО Сбербанк О лоте: Нежилое помещение площадью 134,5 кв.м Этажность: 1 Кадастровый номер: 22:72:060403:1762 Обратная аренда: нет Особые условия: Особые условия указаны в "Аукционной документации" к лоту. Дополнительная информация, документы и условия реализации указаны на площадке в разделе «Документы». По всем вопросам, связанным с лотом, обращайтесь в рабочее время по телефону с 09:00 до 18:00 по МСК.
Объявление № 23418529
Дата подачи:
18 октября 2025 г. 6:20
Дата обновления:
17 октября 2025 г. 7:24
Просмотров 21 Хотите продать быстрее?

Продавец
Яна СБЕРБАНК АСТ
Показать номер телефона
Пожаловаться
Комментарии:
Добавить